Продается Коттедж возле моря (№ 22-430-654)
Ціна: 28 000 $

Характеристики
| Ціна: | 28 000 $ |
|---|---|
| № об'єкта: | 22-430-654 |
| Поверхів: | 1 |
| Спалень: | 2 |
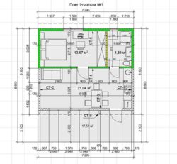
| Площа будинку: | 56 м2 |
| Ділянка: | 1,5 сот |
| Додатково: | котеджне містечко |
Адреса: Одеська, Чорноморськ, Молодіжне, СТ Ветеран, Линия 3
Описание
Чудовий новий котедж 40 кв.м. біля моря з власною земельною ділянкою 0,0150га з критою терассою 16 кв.м. Загальна площа будиночка - 56 кв.м.. Фундамент свайний. 2 поверхи, якісні Німецькі панорамні вікна. Щойно побудували. Ще ніхто не жив. Оздоблення - під чистові роботи (ми можемо виконати за Вашим бажанням і на Ваш смак). Каналізація - своя особиста (септік на ділянці), підключена. Водопровід - центральний (іде по вулиці) підключений. Світло підключене. В ціну входить вже готовий сучасний паркан (з бетонною основою на фасадній частині) і консольні ворота (на які ви зможете встановити привід і відчиняти з пульта). Пішки до моря - 10хв. Супермаркет - 150м. Автостоянка з охороною - 150м. Школа, садочок - у м.Чорноморськ, це у 2км. Будинок ідеально підійде молодої сім'ї для проживання половину року, а іншу половину року здавати в оренду на літній період. Розмір ділянки: 0,015га. Категорія ділянки: землі сільськогосподарського призначення з можливістю будівництва. Вид цільового призначення: для індивідуального садівництва (цільове за потреби змінете, але це не обов'язково так як такого плану будівля не вважається капітальною і узаконюється за бажанням власника). торг!








